Gridmark Survey are very proud to be the number one choice for architects and planners in the North East and Cumbria when it comes to their measured building survey requirements.
If you’re looking for a measured building survey near you then please get in touch. Whilst we conduct most of our surveys in the North East region we also work for a number of national companies requiring measured building survey work across the UK.


We consider measured building surveys to be our “bread and butter” at Gridmark Survey and our years of experience enable us to not only mobilise quickly to meet your tight deadlines but to also be very efficient on site. As we’re so used to conducting such survey work we are also very adept at pulling together the survey information to ensure you get the survey report when you need it – if not before.
Over half of the measured building surveys we conduct are for commercial or residential architects which range from “one man bands” through to large national architect firms. The type of work ranges from small home extensions through to outbuildings, new builds, historical restoration work and large commercial building projects.
We also deal with a number of local authorities and planning companies who require measured building services as part of strategic land promotion, town planning works or as part of their appraisal and due diligence reports.
One thing we guarantee is that all clients will receive the highest levels of accuracy and customer service in the delivery of a Gridmark Survey measured building survey.


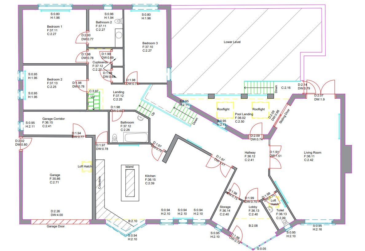
Measured building survey reports will vastly differ in size and the specifics depending on the scope of the work but commonly they will include very accurate floor plans, elevations and cross sections which we’ll obtain through our cutting edge laser scanning equipment which will show pinpoint accuracy of internal and external dimensions. This technology removes the need to conduct timely manual measurements and mitigates the dreaded “human errors” which can cause havoc in an architect or planners building plan.
We also conduct a lot of laser scans in our measured building surveys both for extensions and restoration works. We provide phenomenally detailed 3D models in these reports which provide levels of accuracy and detail which can’t be achieved with traditional survey methods.
We are also more than happy to accommodate specific requests within your measured building survey – it’s your report after all and we want you to be happy with the results.
Commonly our clients ask us for their measured building surveys as 3D Revit models, 2D CAD drawings, IFC files and other BIM formats. But essentially we can provide the report in almost any format you require.


We utilise state of the art geospatial survey equipment which we keep fully calibrated, serviced and ready to mobilise.
We commonly use our robotic total stations and GNSS receivers for integrated GPS surveys, along with cutting edge laser scanners
For larger scale land surveys and sites with access challenges we commonly utilise our high specification winged drones which provide astonishing aerial photogrammetry and scanning technology which can also speed up the time it takes to gather the survey data when compared with the use of total stations and GNSS receivers alone. Rest assured that Gridmark Survey’s team includes approved Drone Safe™ operators and CAA Approved drone pilots.
Our meticulous survey team then uses various leading software packages including LSS to pull together the full survey reports to provide you with an astonishing level of detail often down to a <1mm level.
In short – yes. The vast majority of our clients require us to work to the guidance contained in the RICS Measured surveys of land, buildings and utilities practice standard. This includes, but is not limited to, the setting out of a survey, the monitoring of deformation and the deliverables such as digital terminal models, CAD and point cloud.
This practice standard forms an important part of Gridmark Survey’s standard operating procedure for conducting measured building surveys so unless otherwise specified by a customer you are assured of a known benchmark

Experience
Gridmark Survey was formed in 2014 founded by a survey and support team who have worked in the geospatial survey, civil engineering, earthworks and aerial photography industries for many years which adds up to over 80 years of collective experience which we then apply to your building project.
Understanding
We understand the key components of conducting an accurate and detailed measured building survey. We are meticulous throughout the process, understanding the importance of each part – from the initial GPS location through to the delivery of the survey to your inbox. We measure our Delivered Right First Time (DRFT) performance and average over 99% year after year.
Speed
We believe we’re the fastest to respond to RFQs amongst our peers. We understand that deadlines are often very tight and have not missed one yet. We’re also agile enough to mobilise our survey team day or night to help you hit your goals.
Friendly Bunch
We invite you to ask any of our clients how easy we are to deal with. We’re very proud of what we do, how we do it and the hundreds of projects we’re involved in every year and we like to do it with a smile on our face.
Please get in touch today so that we can learn more about your measured building survey requirements